文档详情

卸气柱安装图

小**
实名认证
店铺
PDF
63.40KB
约1页
文档ID:86377485
卸气柱安装图_第1页
1/1

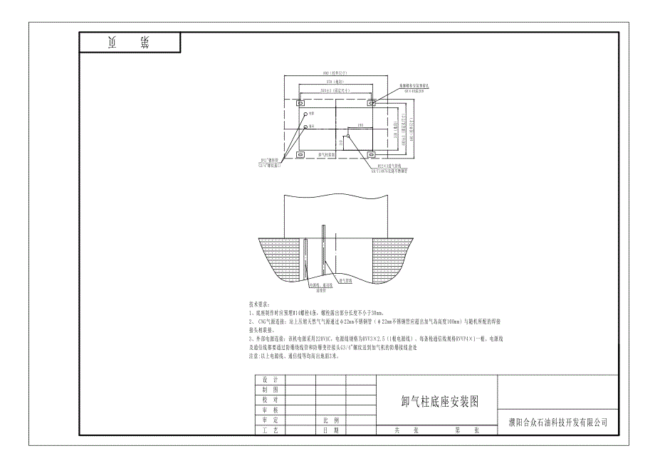
550±3(固定尺寸) 570(地沟) 330(地沟) 400±3(固定孔尺寸) 地脚螺栓安装预留孔 60×40深200 DN1“镀锌管 G3/4“螺纹接口 进气管线 电源线、通讯线 进线管 Ø22×3进气管线 GB/T14976无缝不锈钢管 190 卸气柱前面 通讯 电源 110 800(柱外尺寸) 460(柱外尺寸) 第张 濮阳合众石油科技开发有限公司 共张 比例 日期 审核 工艺 审定 校对 制图 设计 第页 技术要求: 1、底座制作时应预埋M14螺栓4条,螺栓露出部分长度不小于30mm 2、 CNG气源连接:站上压缩天然气气源通过φ22mm不锈钢管(φ22mm不锈钢管应超出加气岛高度100mm)与随机所配的焊接 接头相联接 3、外部电源连接:该机电源采用220VAC,电源线规格为RVV3×2.5(1根电源线)每条枪通信线规格RVVP4×1一根电源线 及通信线都要通过防爆绕线管和防爆变径接头G3/4“螺纹送到加气机的防爆接线盒处 注意:以上电源线、通信线等均高出地面3米 卸气柱底座安装图 。

下载提示
相似文档
正为您匹配相似的精品文档