文档详情

古建亭子cad施工图集1

F****n
实名认证
店铺
DOC
4.53MB
约5页
文档ID:100766564
古建亭子cad施工图集1_第1页
1/5

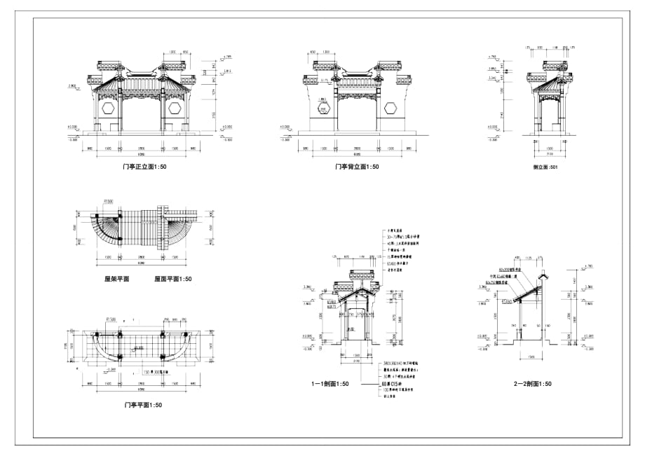
门亭正立面1:50 门亭背立面1:50 侧立面:501屋架平面 屋面平面1:501-1剖面1:50 2-2剖面1:50门亭平面1:50非物质文化遗产是指各族人民世代传承的,与群众生活密切相关的各种传统文化表现形式和文化空间,包括民俗活动、表演艺术、传统知识和技能以及与之相关的器具、实物、手工制品等园亭立面图1:50园亭-1 剖面图1:50三角亭立面图1:50三角亭剖面图1:50园亭平面图1:50园亭屋架平面图1:50三角亭平面图1:50屋架屋面平面图1:50宝顶大样1:25阶沿大样1:25宝顶大样1:25戗角大样1:25挂落大样1:25宝顶大样1:25八角亭立面图1:50八角亭-1 剖面1:50吴王靠大样1:25坐槛大样1:25八角亭平面图1:50屋架、屋面平面图1:50戗角大样1:25风窗大样1:25 宝顶大样1:25五角重檐亭立面图1:50 -1 剖面图:501 挂落大样1:25 坐槛大样1:25五角重檐亭平面图1:50 下檐屋架1:50 上檐屋架1:50 屋面平面1:50宝顶大样1:25五角亭立面图1:50-1剖面图:501戗角大样1:25挂落大样1:25五角亭平面图1:50屋架平面1:50屋面平面1:50坐槛大样1:25。

下载提示
相似文档
正为您匹配相似的精品文档
相关文档