文档详情

菱系列变频器PID控制参数设置及校正

tang****xu7
实名认证
店铺
DOCX
1.23MB
约17页
文档ID:292978508
菱系列变频器PID控制参数设置及校正_第1页
1/17

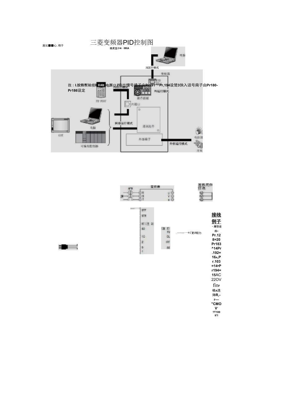
三菱变频器PID控制图沌区行柳式接线例子・漏型诺得-Pr.128=20Pr183^14Pr.192=16A,Pr.103=14•Pr194=15AC22OVfinF碓A透降R,-r—"CMOV-?T100It1I.—-…一*f更if帽力度比■■心,埼于温度显示4一IIKA注:I.按熊熨祐坝格选任电源口2瑜出憎号墙子由Pr191〜Pr,194设楚3饷入诘号南子由Pr180-Pr186设定PIDt?,词非〜•一^®SX14).5a>接线例,.-2垸式时•Pn必—14•Pn192—WFR-E700ACIO200/220V5颂!k>“《Firm、—■>IV,iiwirv<,4~ahA设定希(月标值拓)(OCT)JC;M(24V)•ii.JIII••—I」InP/傩制(Pr127〜Pr134〉FR-E700P1D控制接线图•汁./内=20比lKi=M♦i技俊题部切电源携垮这择电晚・O所,前的■入竹845『随片.」俗<#A<7^4Wt/F?tt«5tfi不月.AMITSUBISHIT?DAme三菱变频调速器rK-A5UUPID控制接线图接埃例子•漏业庄镇Pr.183^14Pr.192=^16Pr.193二14•Pr.194-15ACUpiWMiinw是电位at号20022W3&60HX>注・1按传事籍规格透择电淳.2拍田信号说子由Pr191至Pr194设定3.整入信号瑞子由Pr.l80¥Pr.186设定.2.系统构成FR-F500-CH系列(1)Pr.501-电机切换选捧”一0(基本方式)肘Hr*正就给水DC24V检测备偏菱值号施型涅MlPr1S3-14.Pr.18524Pr19442.Pr19343.Pr19244的情况设定部(设走目标鱼:反枕Ri«PID控制选择PID正反动作切换2埃式的情况JPID控制接线图右DCTuvwg

1C2AROd3C例MCGWIH01我RIO3XR>)3DC2W给水FR-F5OO-CH系列S12线式的情况测定值)420mAFR-F500-CH系列pid^FR-F500p/d控制w机10SfsoAC1«200220VWMHz>ftWfcx■出勺号公共yIG2I<—rIFa^—>twipfM««tnPr183=14.Pr185=24Pf194-45.Pr193-41.Pr192-46Pr.191—42.Pr.190-47.Pr.320-43Pr.32148.Pr.322=44的情况〈3)接级例子•寰空遂崔Pr183-14Pr192^16Pr.193-14Pt194=15•••III

2短接AU和SD端子,3将拨码开关置1,出厂时默认设置为0接线图远程压力去RTAUSD105R/LlS/L2T/L3控制电机参数设置•为了进行PID控制,请将X14信号置于ON该信号置于OFF时,不进行PID动作,而为通常的变频器运行但是,通过LONWORKS,CC-Link通讯进行PID控制时,没有必要将X14信号置于ON•在变频器的端子2-5间或者中输入目标值,在变频器的端子4-5间输入测量值信号此时,请设定为"20或者21"•输入在外部计算的偏差信号时,请在端子1-5间输入此时,请设定为"10或者11"参数表4菖号1使用端子功能内容卷数设定输入通过Pr.t78-Pr189PID控制选撵进行P1D控利时将K14置手0MPr178-Pr189中的任意一个设定14PID正负作用切挨将X64置于ON,PID负作用时Pr.128=10,20)蔬辅切换到正作用,正作用时|Pr.?28=11,2】J时跳葡切换刻负作用.Pr.178Pr.18$中的任意一个设定6422目标值墉入愉入PID控制的目懦值Pr.128=20,21.Pr『33=9999〜SV,…0—1OCSPr.73=1…3,5,1E13*15O^IOV...0〜100\Pr.73・0.2t4.10.144〜20ntA.0—100%Pr.73=札7PU—目标值输入从操作面板,参数单元中设定目标值[Pr.133>Pr.128=20.21.Pr.133=0-100%11偏差信号输入愉入在外怒计鼻的偏差信号Pr.128=10…11....-100%-+100%Pr.73=2.3.5.7,12.13.IS,1710V*4-10V..-100*-+100%P'r73=0下1*1V4I-6_10k11»14b1644测W值输入输入检测器发出的信号,测M值信号)Pr.128=20.214点&nA..0-100\Pr.267=。

〜5V…OFQO*fir.267=1OF0V…0—100S片267=2通讯*2偏差值蜿入从LMw,CC-Link通机输入俯茬值Pr.128=50,51目标值,测量值搐入从L曲WcfiKS,CC-Link通讯输入目标值和遣定值Pr.128=60.61晰出FUPPr190-Pr,W上隈输出漏量信号超出上限值E『如时输出Pr,128=20,2h50,61Pr.131#9999Pn190-Pr196中的任意一个设;定为16或者115“FDN下阳输出测据信号超出下限望睥恤'附输出Pr.128=221*60.61Pr.732工9999Pr.1&0-Pr挎S中的任崽一个设定为14或:者114-3RL正转反转,方向输出都裁单元的输出显示为正转FWD时输出[Hi].反转(REV)1停止(STOP)时输出[Lw]Pr.7&0Pr腴中的任壹一个设定为16成害116整PIDPID控制动作中PID控制中Pr.应Pr应中的任童一个设定为47或者1474FIO输出中断中PI输出中府功能动作时置于ONPr.575,9999Pr.l&O-Pr196中的任悬一个设定为60或者17fSESE辎出公共端子靖子FUP.FDN.IL.PlDrSLEEP的公共XUI®T=20(PID负作用)=14(PID控制选择)=1或2(4号端子输入电压选择,1时为0—5VDC;2时为0—10VDC)=设定目标值(也可以从2号端子输入,详见说明书)四、参数校正将上述参数设置完成以后,保证RT端子和AU端子均和SD端子短接后,再进行参数校正。

将压力表值调节到0MPa,设置参数=0;将压力表值调节到,设置参数=100.这样,0—100将和0—等比例对应,目标值设定中设定值(0—100)与0—等比例对应1调整步骤训整Pr127Pr134.Pr.575Pr577的PID控制卷施设定PID控制用的输入输出端子178-Fr.匕输入礴于盘腐雄棒1如&场藉*WF宅籥泠港』■2详细校正过程(1)按变频器PU板上的MODE键,调至参数选择界面,如图:F'r.ODiir然后旋转旋钮使界面到参数设置界面,如图:C—,再按SET键进入参数号选择界面,如图:,此时字母C后的光标闪烁将压力表值调节到0MPa并保持,然后旋转旋钮,当字母C后面数字为6时停止旋转,并按SET键确认,键入的参数设置界面,此时显示的值不一定为0,旋转按钮是其值为0.并按下SET键确认,确认成功后,屏幕在参数号和参数设置值之间交替闪烁按MODE键回到参数号选择界面,将压力表值调节到并保持,旋转旋钮是字母C后面的数值为7,按SET键进入的参数设置界面,此时显示的值不一定为100,旋转旋钮是其值为100,并按下SET键确认,确认成功后,屏幕在参数号和参数设置值之间交替闪烁2) 按MODE键回到监视界面,开始运行。

3校正实例(七下使用4M的传感器.50弋下使用MmA的佳感器.通i^PID控制.将室温调整到捧目标值加在变频器的端子A8间(0-5V).>■去即校正时通过没正土知之以及Pr_903〔媒衣》喧刮「M4以瓯IV905〔捻干4)避厅希第器愉溶以及目标利定褊入的枝正校正在变耘器停止中的RJ模式下进厅.1. V目标值输入的校正〉端子2-5间外加目标设定0%的输入电压(例:0V)的偏差为0%时,输入变频器必须输出的频率(例:0Hz)设定0%时的电压值4.端子2-5间外加设定值设定100%的输入电压(例:5V)的偏差为100%时,输入变频器必须输出的频率(例:50Hz)设定100%时的电压值1. <传感器输出的校正>端子4-5间外加检测器设定0%的输出电流(例:4mA)2. 通过C6()进行校正3. 端子4-5间外加检测器设定的100%的输出电流(例:20mA)4. 通过C7()进行校正五、说明1以上参数设置完成,参数校正成功后,变频器断电再次启动后,无需重新设置和校正参数2校正参数前,须保证AU端子和SD端子短接,拨码开关置1(X14置ON).3设置值对应4号端子输入的测量值的最小值,设置值对应4号端子输入的测量值的最大值,建议分别设置为0和100.4参数值设定PID为负作用还是正作用,当在(目标值—测量值)为正时增加执行量(输出频率),为负时减小执行量时为负作用,设定为20;当(目标值一测量值)为负时增加执行量,为正时减小执行量,选择正作用,设置为21.5中设定值为当前测量值占最大测量值的百分数。

如上所设,0—在和设定对应0一100,贝U,若想在压力超过时电机减速(变频器频率输出减小),此时(占的50%)对应0—100中的50,则设置为50.六、附录变频器能够进行流量,风量或者压力等的过程控制由端子2输入信号或。

下载提示
相似文档
正为您匹配相似的精品文档