文档详情

技术参数及外形尺寸

cl****1
实名认证
店铺
DOCX
156.28KB
约3页
文档ID:518781384
技术参数及外形尺寸_第1页
1/3

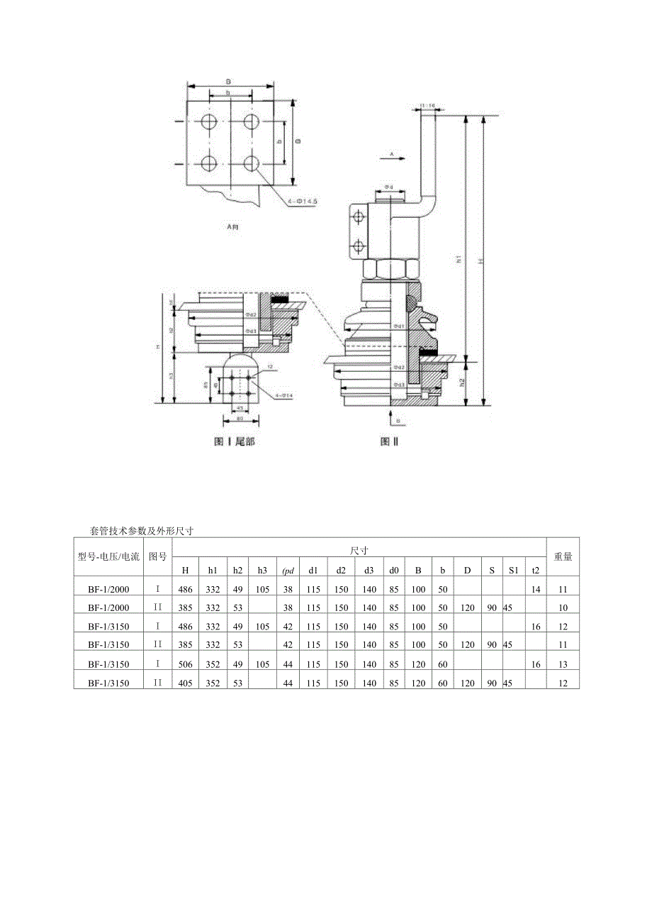
套管技术参数及外形尺寸型号-电压/电流图号尺寸重量Hh1h2h3(pdd1d2d3d0BbDSS1t2BF-1/2000I486332491053811515014085100501411BF-1/2000II38533253381151501408510050120904510BF-1/3150I486332491054211515014085100501612BF-1/3150II38533253421151501408510050120904511BF-1/3150I506352491054411515014085120601613BF-1/3150II40535253441151501408512060120904512套管技术参数及外形尺寸型号-电压/电流图号尺寸电缆截面伞形伞数爬距重量Hh1h2h3qdlqd2Mdd0BJL-10/50I3101602101846.5115127025单伞32802.5BJL-10/100I31016021018410.5115127050单伞32802.5BJL-10/275I320160220184121151270100单伞32802.6BJL-10/315I320160220184181151270150单伞32802.6BJL-10/50-315 套管安M沫兰O4-M12A-M16和MS章防护网安叢尺寸4M12只阳弓舍斤强县林兴笈哇紋人匚代号HDXS3-0.5350110XS3-1440140XS3-2495140XS3-1,5500140XS3-3500163XS3-5570168EKlefnmal Dimension外形尺寸。

下载提示
相似文档
正为您匹配相似的精品文档