文档详情

粉料仓结构设计计算书

z****
实名认证
店铺
DOCX
104.61KB
约9页
文档ID:259704578
粉料仓结构设计计算书_第1页
1/9

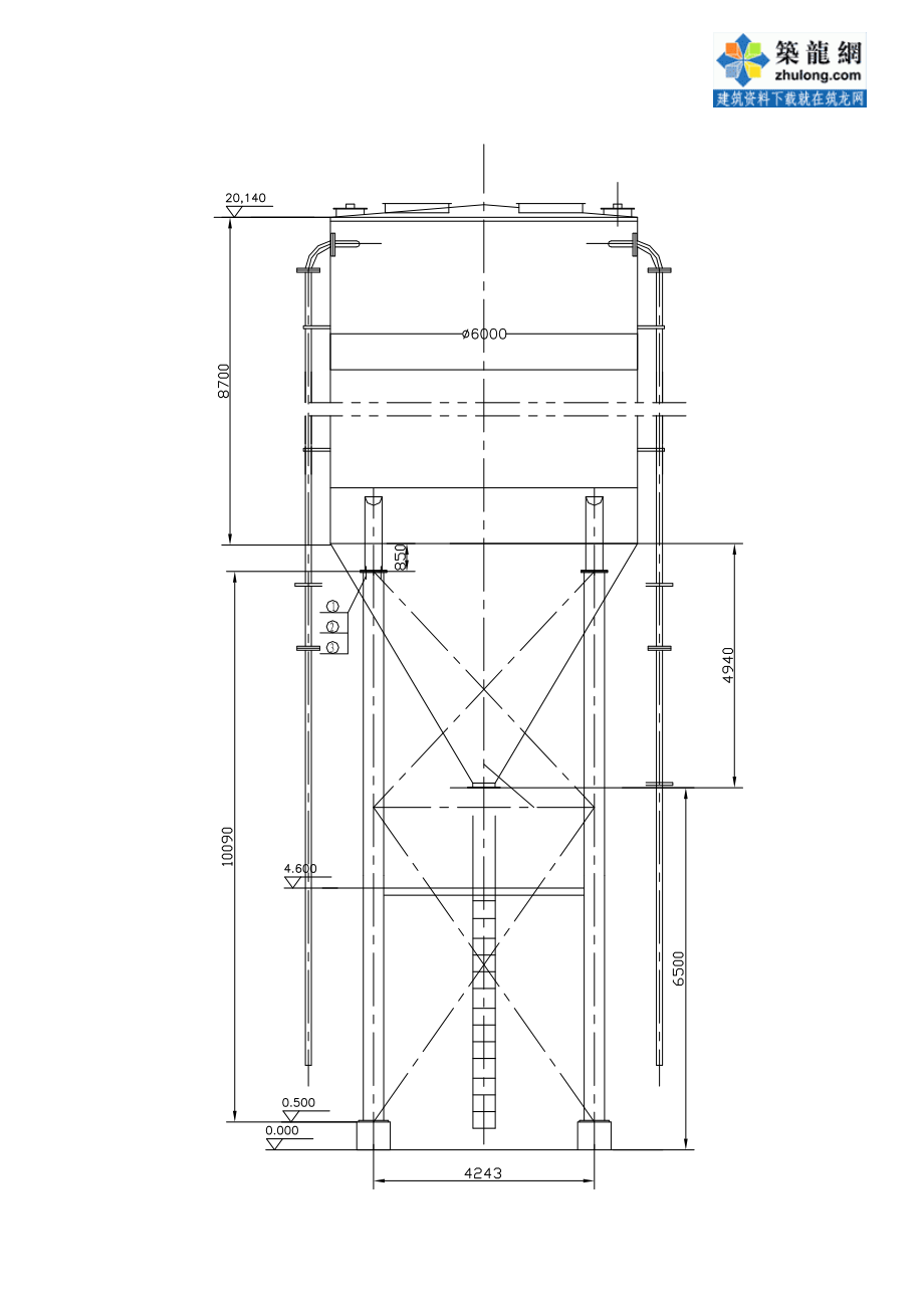
1:仓段计算1.1:直段:(一) 受力分析(标准值)区 段ABCD到仓顶距离 (m) (s)1.256.257.58.7Uks/p=0.080.420.50.581-e-uks/p0.0770.3430.3930.44修正系数 Ch1111Ph=Chrp/u(1-e-uks/p) (KPa)6.0426.8930.8134.5Pv=Cvrp uk(1-e-ukhn/p)Cv=1.3 (KPa)23.56104.87120.16134.55环向拉力(标准值) Nhs=PhD/2 (KN)18.1280.6792.43103.5仓顶载荷及自重作用力,垂直压力(KN)1.333.253.734.29摩擦力产生垂直压力(KN/m)2.2125.9837.07449.36单排仓风载产生拉、压力直段高H=8.7m 直径D=6m H/D=8.7/6=1.45 接近1.5 ,且D>4m,可按深仓理论计算仓顶荷载:袋式除尘器:424kg,其它等 共600kg~kg/m 仓顶自重1211kg~65kg/m壁板:δ=4 31.4kg/m2 δ=5 39.25kg/m2u:贮料与摩擦系数,k:侧压力系数 k=tg(450-φ/2)s:仓顶到计算截面距离p:水力半径Cn:水平压力修正系数Cv:垂直压力修正系数。

r:贮料密度 .1.6t/m3=15.68KN/m3(二、) 壁板厚度及横劲1、 区段A:高度(0~.1.25m)a、 壁板厚度:P环=18.12KN/m P压=18.12KN/m取δ=4mm σ切=[(18.12/9.8)x100]/(0.4x100)=46.2kg/cm2σ法=[(3.54/9.8)x100]/(0.4x100)=9.03kg/cm2σ切 +σ法σ总==47kg/cm2<1700 kg/cm2b、 横劲 顶盖均布载荷:=总载荷/(πr2)= (除尘+自+人群)/(πr2)=4300/(πr2)=1.50KN/m2 径向力: Nφ=(1.5x3.037)/(2sin9o)=14.56 KN/m环向力: Nθ=1.5x3.037xcos9octg9o=28.41 KN/m环向拉力:T=14.56x3xcos9o=43.14 KN=4.4T取 [10 A=12.74Cm2 λ=4402/12.74=345kg/ cm22、区段:Ca、壁板厚度:P环=92.43KN/m P压=3.73+37.74=41.47KN/m取δ=5mm σ切=[(92.43/9.8)x100]/(0.5x100)=188.7kg/cm2σ法=[(41.47/9.8)x100]/(0.5x100)=84.63kg/cm2σ总=207kg/cm2<1700 kg/cm2b、横劲环向力 P环=80.67KN/m N环=100.84KN/m取 [10 A=12.74Cm2 λ=(100.84x1000)/(9.8x12.74)=807kg/ cm23、区段:Da、 壁板厚度:P环=103.5KN/m P压=4.29+49.36=53.65KN/m取δ=6mm σ切=[(103.5/9.8)x100]/(0.6x100)=176kg/cm2σ法=[(53.65/9.8)x100]/(0.6x100)=91.24kg/cm2σ总=198kg/cm2<1700 kg/cm2b、 横劲环向力 P环=92.43KN/m N环=113.22KN/m取 [14 A=18.51Cm2 λ=(113.22x1000)/(9.8x18.51)=624.15kg/ cm21.2、锥段:L(m)高度(m)竖向压力(Pv)(KPa)环向压力(KPa)法向压力(PN)(KPa)环向拉力(KN/m)斜拉力(KN/m)68.7134.5534.567.27233.03280.063.11311.2134.5567.27120.90133.540.41113.54134.5567.2715.9615.98法向拉力: PN=ξPV ξ=cos2α+ksin2α=0.5 k=0.3333 α=60o 环向拉力: NP=PNctgαl=38.838 l斜拉力: Nmin=(l ctgαl/2){PV+[ r(sinα)/(3 l2) ] (l3- l13 )}吊挂设备引起的斜拉力忽略高度为8.7m处壁板强度:NP2 +Nm2 N总= =364.33 KN/m取δ=6mm 则 λ=(364.33x1000)/(9.8x0.6x100)=620kg/ cm2<1700 kg/cm21.3:环梁 1:罐+贮+吊挂物=354t 支柱处N=354/4=88.5 此处椎段斜拉力=(88.5/sin60)x9.8=1001.47KNP环=500.73-103.5-233.03=164.20KN/m A=0.6X100+2X21.6X2=146.4 cm2则 λ=(164.2x1000)/(9.8A)=114.4kg/ cm22、跨中: S=0.6X70X35+2X21.6X69=4450.8 A=0.6X70+2X216X2=128.4 Z=S/A=34.66 I=1/12X0.6X703+2X21.6X342X2=117028 cm4 W=3343 cm3环梁受均布载荷 总重/(2πr)=354t/(2xπx3)=18.78t/m M支柱上=-0.214602 qk2=-36.27 t-m M跨中=0.110721 qk2=18.71 t-m λ跨中=(18.71x100000)/3343=560kg/ cm23、支柱处 S=0.6X70X35+2.6X60X25+2x21.6x119+1x21.6x84+2x21.6x50+1x34.8x25 =17455.2 A=0.6X70+2.6X60+2x21.6+2x48.1+1x34.8=437 Z=S/A=40 I=1/12X0.6X703+0.6X70X452X2x21.6x792+1x21.6x442+2x21.6x102 +34.8x152+2x48.1x402=579698 cm4 W=7246 cm3 λ跨中=(36.27x100000)/7246=500kg/ cm22;排架2.1:荷载 1、 贮料:350t自重:21.682t附属物重:1.5t2、风载:W=ΒZUsUzWo=51kg/m2 WO 基本风压 35kg/m2(北京地区十年一遇最大风力) Us<0.7 Uz=1.14βZ =1.83 自振周期 T=0.56+0.4x10-3(h2/D) h=19.75m D=6m T=0.586s>0.25s 所以 考虑风振系数 βZ =1+[(ξυφZ)/ Uz ]=1+[(1.88x0.755x0.665)/ 1.14 ]=1.83 风载作用点: S=6x8.7x(8.7/2+4.81)+(6+0.4)x(4.841/20x(4.841x2/3)=480+50=530 A=6x8.7=6.4x4.841/2=67.69 Z=7.8m 风载 P=51xA=51x67.69=3452kg2.2;内力:1、 立柱: N1=(350+21682+1.5)/4=93.3t风载 N拉= N压=(3.452x13.55)/(4.243x2)=5.51t N拉总=93.3+5.51=98.8t N拉=5.51-21.682/4=0.1t2、 斜撑2.3:应力1、立柱: λ=502.5/13.08=38.41D2 +d2 A=116.24 cm2 φ=0.932 i=1/4 =13.08 用φ38x10 λ=(98.8x103)/(0.932x116.24)=912kg/cm2<1700kg/ cm22、 斜撑① N拉=2.675t λ=328.8/1.57=209<250用 L80x8 A=12.3 cm2 λ=2675/1.57=217 kg/ cm2<250 kg/ cm2② N压=1.726t λ=424.3/2.44=174>150φ=0.932 λ=1726/(0.232x12.3)=605 kg/ cm23、 连接件:①斜撑螺栓:M20 精制螺栓抗剪承载力 4.241t/个 3x4.241t=12.723t②立站: M36 地脚螺栓抗剪承载力 8.99t/个 4x8.99t=35.96t 。

下载提示
相似文档
正为您匹配相似的精品文档