文档详情

中职技能大赛电气安装和维修选手用图

人***
实名认证
店铺
DOC
240KB
约2页
文档ID:436500918
中职技能大赛电气安装和维修选手用图_第1页
1/2

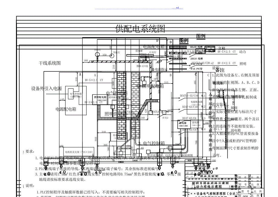
...wd...电气安装与维修赛项专家组图 号比 例001设 计制 图供配电系统图 说明:电源配电箱进线使用赛场提供的五芯护套线,并按标准和要求走线固定电气安装与维修赛项专家组图 号比 例002设 计制 图照明平面图 1说明:此图为俯视图,图中①、④位置同图005的①、④位置电气安装与维修赛项专家组图 号比 例003设 计制 图照明平面图 2要求:弱电箱内的电源按图003所示引入,箱中无插座盒,请将配套的220V电源接插线对接在电源引入线上,并做好绝缘处理说明:此图为俯视图,图中①、④位置同图005的①、④位置电气安装与维修赛项专家组图 号比 例004设 计制 图弱电平面图要求:完成图004所示弱电线路的安装说明:此图为俯视图,图中①、④位置同图005的①、④位置电气安装与维修赛项专家组图 号比 例005设 计制 图电气设备与器件安装位置示意图说明:1.此图为设备左、右侧及顶部展开后的主视图,A、B、C、D面分别对应设备左侧、正面、右侧和顶部钢质多孔板制成的安装面; 2.实际安装位置与标注尺寸允许有±5mm误差,带*号的为参考尺寸,以盒中心对准相应箱体孔中心为主。

电气安装与维修赛项专家组图 号比 例006设 计制 图照明及弱电布线示意图说明:1.此图为设备左、右侧及顶部展开后的主视图,A、B、C、D面分别对应设备左侧、正面、右侧和顶部钢质多孔板制成的安装面; 2.线槽的安装位置与标注尺寸允许有±2mm误差,线管的安装位置允许有±5mm误差;入箱线管应按备注所示图制作鸭脖子弯电气安装与维修赛项专家组图 号比 例007设 计制 图动力布线示意图 说明:1.此图为设备左、右侧及顶部展开后的主视图,A、B、C、D面分别对应设备左侧、正面、右侧和顶部钢质多孔板制成的安装面2.实际安装位置与标注尺寸允许有±10mm误差两个及以上的连接件不能相邻安装3.入箱或柜的PVC管需要按备注中?入箱或柜的PVC管鸭脖弯侧面图?尺寸要求制作鸭脖子弯电气安装与维修赛项专家组图 号比 例008设 计制 图××设备电气控制原理图〔台达〕要求:1. 电动机M1的额定电流为0.4A,电动机M2的额定电流为0.3A,请按此整定热继电器的动作电流;时间继电器参数设置为5秒;2.PLC接线端子连接的导线,其两端请按PLC端子编号;其余按标准进展编号;3.主电路请用1.5mm²红色多股软线安装,控制电路用0.75mm²黑色多股软线安装,零线、接地线请按标准要求选线安装。

说明:1.PLC控制程序及触摸屏数据已经写入,不需要编写相关控制程序;2.变频器、伺服驱动器的参数请按工作任务书中的参数表进展设置;3.调试时,控制要求请参考?××设备电气控制说明书?电气安装与维修赛项专家组图 号比 例008设 计制 图××设备电气控制原理图〔汇川〕要求:1.电动机M1的额定电流为0.4A,电动机M2的额定电流为0.3A,请按此整定热继电器的动作电流;时间继电器参数设置为5秒;2.PLC接线端子连接的导线,其两端请按PLC端子编号;其余按标准进展编号;3.主电路请用1.5mm²红色多股软线安装,控制电路用0.75mm²黑色多股软线安装,零线、接地线请按标准要求选线安装说明:1.PLC控制程序及触摸屏数据已经写入,不需要编写相关控制程序;2.变频器、伺服驱动器的参数请按工作任务书中的参数表进展设置;3.调试时,控制要求请参考?××设备电气控制说明书?电气安装与维修赛项专家组图 号比 例009设 计制 图电气控制箱面板布局图X62W铣床电气控制原理图电气安装与维修赛项专家组图 号比 例010设 计制 图。

下载提示
相似文档
正为您匹配相似的精品文档