文档详情

建筑面积案例

ni****g
实名认证
店铺
DOC
2.48MB
约106页
文档ID:536049899
建筑面积案例_第1页
1/106

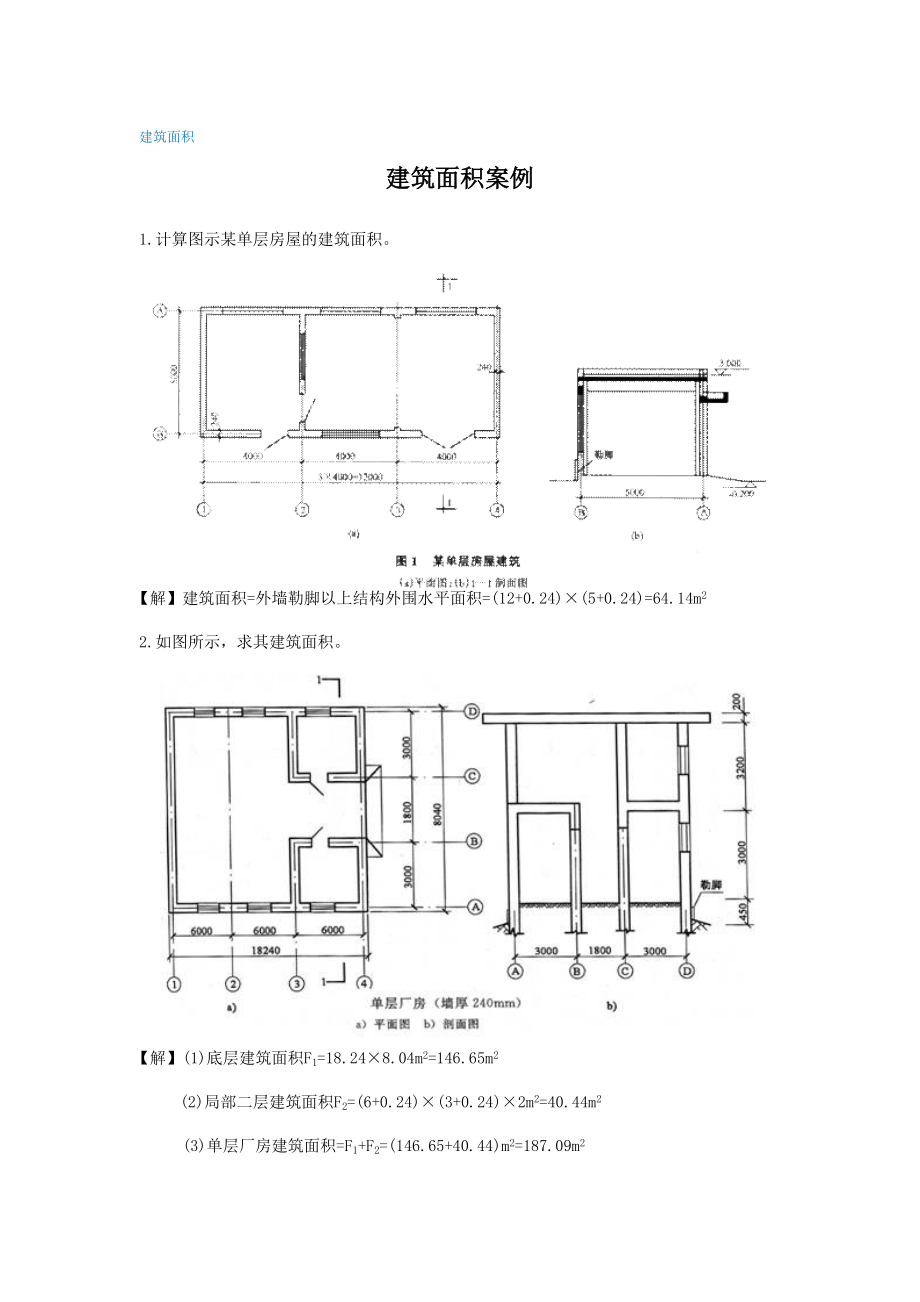
建筑面积建筑面积案例1.计算图示某单层房屋的建筑面积解】建筑面积=外墙勒脚以上结构外围水平面积=(12+0.24)×(5+0.24)=64.14m22.如图所示,求其建筑面积解】(1)底层建筑面积F1=18.24×8.04m2=146.65m2     (2)局部二层建筑面积F2=(6+0.24)×(3+0.24)×2m2=40.44m2      (3)单层厂房建筑面积=F1+F2=(146.65+40.44)m2=187.09m23.求图所示单层工业厂房高跨部分及低跨部分的建筑面积解】(1)高跨部分建筑面积F1=(24+2×0.12)×(12+0.12+0.2)m2=298.64m2      (2)低跨部分建筑面积F2=(24+2×0.12)×(12+6+2×0.12)-F1=(442.14-298.64)m2=143.5m2       或   F2=(24+2×0.12)×(6-0.2+0.12)m2=1435m24.如图所示,计算高低联跨的单层建筑物的建筑面积解】Fl(高跨)=(24+O.24×2)×(12+0.25×2)m2=306.00m2      F2(低跨)=(24+0.24×2)×(6-0.25+0.24)×2m2=293.27m2     F(总面积)=(306.00+293.27)m2=599.27m25.某6层砖混结构住宅楼,2~6层建筑平面图均相同,如图所示。

阳台为不封闭阳台,首层无阳台,其他均与二层相同计算其建筑面积    【解】首层建筑面积F1=(9.20+0.24)×(13.2+0.24)m2=126.87m2     2~6层建筑面积(涉及主体面积和阳台面积) F2~6=Fz+Fy式中: Fz——主体面积  Fy一一阳台面积     Fz=Fl×5-126.87×5m2=634.35m2     Fy=(1.5—0.12)×(3.3×2+0.06×2)×5×1/2m2=23.18m2     F2~6=(634.35+23.18)m2=657.53m2     总建筑面积F=F1+ F2~6=(126.87+657.53)m2=784.40m26.求图所示建筑物的建筑面积解】地下室及附着建筑物外墙的出入口的建筑面积按其上口外墙的(不涉及采光井、防潮层及其防护墙)外围的水平面积计算    F=[20×10.0+(2+0.12)×1.5+1.5×1]m2=204.68m27.求图示深基础做地下架空层的建筑面积解】用深基础做地下架空层加以运用,其层高超过2.2m的,按围护结构外围水平投影面积的一半计算建筑面积    F=(15.0×6.O)/2m2 =90.0/2m2=45.0m28.求图示建筑物的建筑面积。

解】建筑物设有伸缩缝时应分层计算建筑面积,并入所在建筑物建筑面积之内建筑物内门厅、大厅不管其高度如何,均按一层计算建筑面积门厅、大厅内回廊部分按其水平投影面积计算建筑面积F=[20.5×40×3+30.0×14.5×2×2-10.O×(6.0+3.0-0.73)]m2      =[2460+1742.9-82.7]m2=4120.2m29.求如图所示的室外楼梯建筑面积解】室外楼梯设立有三种情况:建筑物内无楼梯,设室外楼梯;室内有楼梯井并设有围护结构的室外楼梯;室内有楼梯并设无围护结构的室外楼梯,建筑面积的计算规则如下:     (1)建筑物内无楼梯,设室外楼梯时,其建筑面积按其投影面积计算     (2)室内有楼梯并设有围护结构的室外楼梯的建筑面积,按其每层投影面积计算     (3)室内有楼梯并设有无围护结构的室外楼梯的建筑面积,按投影面积的一半计算      本倒属干第(1)种情况,其建筑面积为:F=3.6×(6.3+1.8)m2=29.16m210.求图所示的建筑物的建筑面积解】(1)有顶盖的架空通廊建筑面积为F=通廊水平投影面积=15.0×2.4m2=36m2(2)当架空通廊无顶盖时,其建筑面积为:  F=通廊水平投影面积×1/2=15.O×2.4×1/2m2=18m21.如下图所示,底宽1.2m,挖深1.6m,土质为三类         土,求人工挖地槽两侧边坡各放宽多少?【解】已知:K=0.33,h=1.6m,则:每边放坡宽度b=1.6×0.33m=0.53m地槽底宽1.2m,放坡后上口宽度为:(1.2+0.53×2)m=2.26m2.某地槽开挖如下图所示,不放坡,不设工作面,三类土。

试计算其综合基价解】外墙地槽工程量=1.05×1.4×(21.6+7.2)×2m3=84.67m3内墙地槽工程量=0.9×1.4×(7.2-1.05)×3m3=23.25m3附垛地槽工程量=0.125×1.4×1.2×6m2=1.26m3合计=(84.67+23.25+1.26)m3=109.18m3套定额子目1-33   1453.23/100m2×767.16=11148.60(元)挖地槽合用于建筑物的条形基础、埋设地下水管的沟槽,通讯线缆及排水沟等的挖土工程挖土方和挖地坑是底面积大小的区别,它们合用建造地下室、满堂基础、独立基础、设备基础等挖土工程3.某建筑物基础如下图所示,三类土,室内外高差为0.3米计算:(1)人工挖地槽综合基价;(2)砖基础的体积及其综合基价砖基础体积=基础顶宽×(设计高度+折加高度)×基础长度砖基础大放脚折扣高度是把大放脚断面层数,按不同的墙厚,折成高度折加高度见下表表1 标准砖基础大放脚等高式折加高度    (单位:m)【解】(1)计算挖地槽的体积:地槽长度=内墙地槽净长+外墙地槽中心线长              ={[5.00-(0.45+0.3+0.1)×2]+[7+5+7+5]}m=27.30m地槽体积=(0.9+2×0.3+2×0.1)×1.0×27.30m3=46.41m3套定额子目1-33  1453.23/100m2×46.41=674.44(元)(2)计算砖基础的体积:      本工程为等高式大放脚砖基础,放脚三层,砖,查上表得折扣高度为0.259。

砖基础截面积为: (0.259+1.2)×0.365=0.5325(m2)砖基础长=内墙砖基础净长+外墙砖基础中心线长={(5.0-0.37)+(7+5+7+5)}m=28.63m      砖基础体积=基础截面面积×基础长=0.5325×28.63m3=15.25m3            套定额子目3-1  1461.08/10m2×15.25=2228.15(元)4.某建筑物的基础如下图所示,三类土,计算人工挖地槽工程量及其综合基价解】计算顺序按轴线编号,从左至右,由下而上基础宽度相同者合并     11、12轴:室外地面至槽底的深度×槽宽×长=(0.98-0.3)×(0.92+0.3×2)×9×2m3=25.99m3①、②轴:(0.98-0.3)×(0.92+0.3×2)×(9-0.68)×2m3=24.03m3③、④、⑤、⑧、⑨、⑩轴:(0.98—0.3)×(0.92+0.3×2)×(7-0.68-0.3×2)×6m3=49.56m3⑥、⑦轴:(0.98-0.3)×(0.92+0.3×2)×(8.5-0.68-0.3×2)×2m3=20.85m3A、B、C、D、E、F轴:(0.84-0.3)×(0.68+0.3×2)×[39.6×2+(3.6-0.92)]m3=84.89m3挖地槽工程量=(25.99+24.03+49.56+20.85+84.89)m3=m3套定额子目1-33  1453.23/ 100m2×205.32=2983.775.某工程挖地槽放坡如下图所示,三类土,计算其综合基价。

解】工程量=(1.5+1.5+0.594×2)×1.8÷2×[(21十12+15)×2+(15-1.5)]m2=412.73m2       套定额子目1-34  1530.46/ m2×412.73=6316.67(元)6.如图所示,求人工挖沟槽支挡土板土方工程量(二类土)及其综合基价解】(1)挖土方工程量:     (1.4+0.1×2+0.15×2)×1.5×(20+10)×2m3=1.9×1.5×60m3=171.00m3      定额子目1-29换  (767.16×1.1)/100m2×171.00=1443.03(元)(2)挡土板工程量:1.5×2×(20+10)×2m2=3×60m2=180m2套定额子目1-62   1948.57/100m2×180=3507.43(元)    人工挖地槽定额,一般以土壤类别和挖土深度划分定额子目,工程内容涉及挖土、装土、抛土于槽边1m以外,修理槽壁、槽底,在编制工程预算时,没有地质资料,又不易确定土壤类别时暂按干土、坚土计算在竣工结算时按实际土壤类别加以调整7.挖方形地坑如图所示,工作面宽度150,放坡系数1:0.25,四类土求其工程量及其综合基价。

解】方形不放坡地坑计算公式:V=abH,坑深2.8m,放坡系数0.25时V=(2.8+0.15×2+0.25×2.8)2×2.8+1/3×0.252×2.83m3=40.89m3套定额子目1-51  2567.43/100m2×40.89=1049.81(元)8.如图所示,求其工程量及综合基价土质为三类土,有垫层,一次放坡基槽,坡度0.33  【解】工程量=(2+0.15×2+2+0.15×2+1.9×0.33×2)×1.9÷2×[(9+7.5+7.5+8.4)×2+(8.4-2-0.15×2)×2]m3=428.22m3            套定额子目1-34  1530.46/100m2×428.22=6553.74(元)9.某建筑物基础的平面图、剖面图如图所示已知室外设计地坪以下各工程量:垫层体积2.4m2,砖基础体积16.24m3试求该建筑物平整场地、挖土方、回填土、房心回填土、余土运送工程量(不考虑挖填土方的运送),人工装土翻斗车运土,运距300m图中尺寸均以mm计放坡系数K=0.33,工作面宽度c=300mm土石方工程【解】平整场地面积F=(a+4)×(6+4)=(3.2×2+0.24+4)×(6+0.24+4)m2=108.95m2套定额子目1-56   218.44/100m2×108.95=237.99(元)挖地槽体积(按垫层下表面放坡计算)V1=H(a+2c+K×H)L=1.5×(0.8+2×0.3+0.33×1.5)×[(6.4+6)×2+(6-0.4×2-0.3×2)]m3=83.50m3套定额子目1-33  1453.23/100 m3×83.50=1213.45(元)基础回填体积V2=挖土体积一室外地坪以下埋设的砌筑量=(83.50—2.4—16.24)m3=64.86m3套定额子目1-54  680.64/100m3×64.86=441.46(元)房心回填土体积V3=室内地面面积×h=(3.2-0.24)×(6—0.24)×2×0.27m3=9.21m3套定额子目1-54  680.64/100 m3×9.21=62.69(元)余土运送体积V4=挖土体积一基础回填土体积-房心回填土体积=(83.50-64.86-9.21)m3=9.43m3。

下载提示
相似文档
正为您匹配相似的精品文档