文档详情

电梯组装轿厢

人***
实名认证
店铺
DOCX
1.23MB
约38页
文档ID:514940322
电梯组装轿厢_第1页
1/38

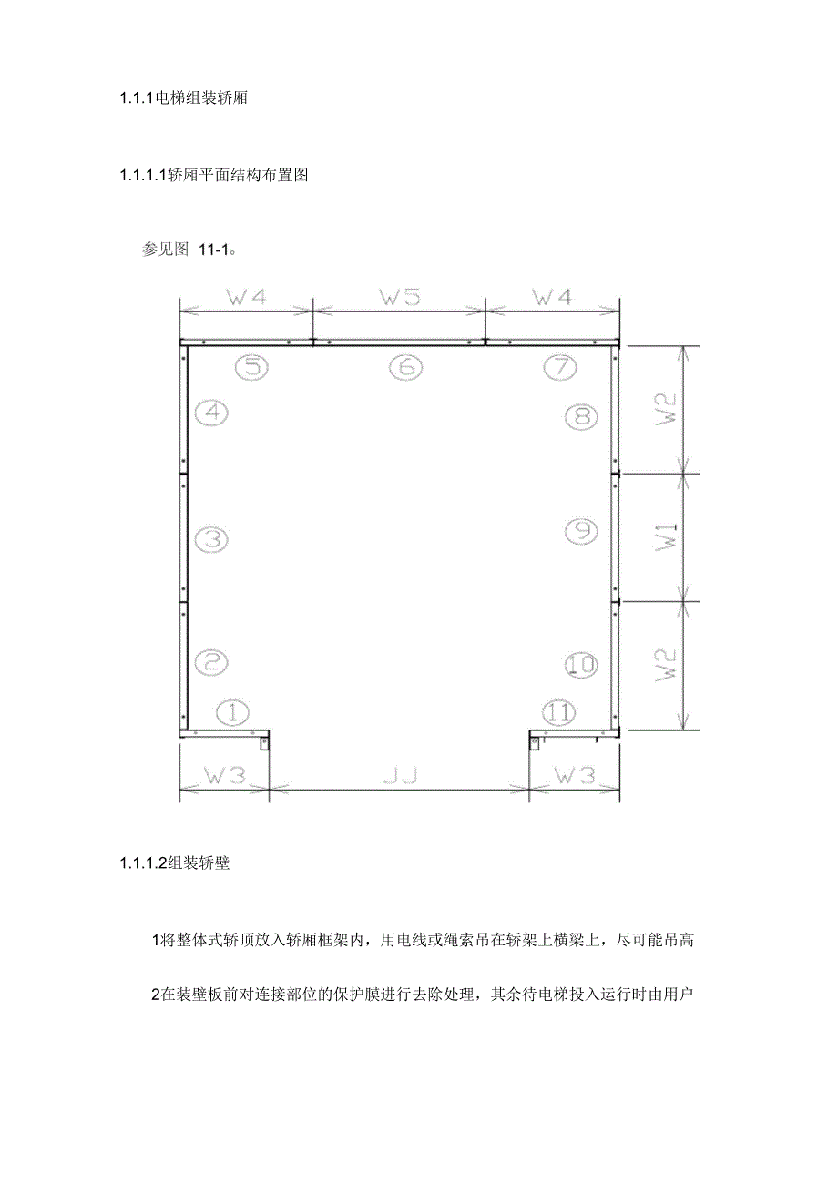
1.1.1电梯组装轿厢1.1.1.1轿厢平面结构布置图1.1.1.2组装轿壁1将整体式轿顶放入轿厢框架内,用电线或绳索吊在轿架上横梁上,尽可能吊高2在装壁板前对连接部位的保护膜进行去除处理,其余待电梯投入运行时由用户除去其余部分参见图7-183壁板的连接:首先在一铺有保护物品的平坦地面上,将后轿壁按⑤⑥⑦进行连接;其次将左右侧轿壁(②③④/⑧⑨⑩)进行连接;前壁板等装完装饰顶后进行安装注意:1)必须保护轿壁表面不被划伤;2)连接时注意轿壁板上标识的箭头方向一致且向上壁板间的连接使用6支M6X 15长螺母进行连接,中间与转角部位的连接参见图112转角部位的固定中间部位的固定'六用螺母图 11-2轿壁与轿厢地板的连接参见图11-3图 11-4图 11-34壁板与壁板的平齐度应控制在 1mm以内,参见图11-25壁板的安装顺序:首先安装组装好的后壁板组合,其次安装左或右侧壁板组合一、/汪忠:1)、应尽可能使组合的壁板下端(在同一水平面内2)、调整壁板间的水平度在标准值内3)、应完全拧紧壁板间的连接螺栓,待校正轿壁时再松开6壁板与轿底踢脚板的连接螺栓,轻轻紧固,待校正完成后完全紧固7安装轿顶8安装前壁板及前框板9安装轿门导轨组件10在轿厢的左右前壁板位置,用线坠测量轿厢在 X、Y方向上的垂直度。

X、方向上的垂直度偏差应控制在应在 1mm以内,否则应在轿底称重橡胶与轿底托架之间插入垫片进行调整参见图 11-501)方向的倾斜:AD插入或从BC抽出垫片2)方向的倾斜:BC插入或从AD抽出垫片3)方向的倾斜:CD插入或从AB抽出垫片4)方向的倾斜:AB插入或从CD抽出垫片1轿顶总体布置图,参见图11-61.1.1.3轿顶的安装矫顶防护栏导轨加油器新质检修盒轿顶接线盒门机系统光幕盒轿顶急停 开关钢丝理头到站钟轿小风扇平层感应器隔磁板-安全钳拉杆图 11-62轿厢壁板组装完成后,将原来吊在上横梁上的轿顶对应其与轿壁的连接孔慢慢放下,然后用螺栓固定注意风扇孔的位置在轿厢后侧,轿壁与轿壁拼装时不能少一11-7、 11-8颗螺栓,防止引起电梯运行过程当中轿壁与轿壁之间的声响参见图[i h ।图 11-7图 11-83轿顶校正器的安装图11-9为轿顶校正器示意图til1 11 :;aj ।图11-10为轿顶校正器安装示意图11.3.4 安装前壁板及前框板11.3.4.1 按图11-2和图11-4将前壁板与轿壁及轿底连接,挂上螺栓,不紧固11.3.4.2 将前框板与前壁板及轿顶进行连接,注意与前壁板的平面度要求< 1mm 参见图 11-2, 11-8。

注意:前框板应首先与前壁板连接紧固,其次将前壁板与侧壁板紧固11.3.5 调整轿厢位置,紧固各螺丝顺序是先紧固轿壁连接处的螺丝,并按顺序 从下到上再紧固轿顶与轿壁的螺丝,并按顺序从后壁到侧壁紧固时应保证连接紧 密、间隙一致、夹角平行、板面平行、垂直最后紧固轿底和侧轿壁的螺丝,这时最 关键的是,应边调整边紧固保证轿厢整齐轿壁的铅垂度为1/1000,平面度为< 1mm, 前后、左右尺寸分中待整个轿厢拼装完毕,要求个尺寸进行复查,并做好记录,以 便查阅6轿顶防护栏安装护栏高度一般为700mm,当防护栏与墙壁距离超过 850mm时,护栏高度应为1100mm o7轿顶风扇的安装所配风扇为轴流型风扇其安装位置在轿顶后部风扇马达接线,应区分电源的 频率后正确插接参见图11-11图 11-111.1.1.4操纵盘安装1操纵盘底盒安装简图,参见图11-12图 11-12操纵盘底盒体放入轿厢操纵盘壁板预留的孔内,利用侧面孔用螺栓固定2将纵盘面板卡进操纵盘底盒内,调整操纵盘面板与轿厢壁板面平齐,平齐度<1mm1.1.1.5轿门联动机构及轿门的安装门机安装示意简图,参见图11-13JJ7037503038539J0950:003工33[一L--1560LES01 /6CI8S0;206019226022525cl3003253503^54cle425二-心序诽i I-. ■;僧 了EE「J图 11-131轿门装置的安装门机安装臂的安装:按图11-14在轿厢立柱上安装门机安装臂,连接好斜拉杆 临时紧固,待门机调整完毕后再拧紧螺母。

门机的安装:按图11-14将门机通过长条孔与横梁连接好,保证门机中心与轿厢中心一致并通过长条孔调节门机的前后距离,使图 11-15中门机导轨和轿门地坎的水平距离保证为58±1mm;通过调整螺栓B保证高度方向门机导轨和地坎距离为(HH+87)± 1mm,HH为轿厢进出口高度i □□图 11-14门机导轨轿门地坎ramyxuH层门地坎图 11-15轿门的安装:(1)轿厢门扇的安装与厅门基本相同轿门安装时必须与轿门头及轿厢地坎按图纸要求进行安装,并且符合各项技术要求在电梯出故障或停电时,在轿内应能用 手将门扒开,所需要的力不超过 300N参见图11-16, 11-17图 11-16门腿轿门地坎图 11-17(2)按图11-16用小封包中M8的螺栓组件把门板吊装好;再按图11-17安装门滑块;若门板倾斜可在门上封头和门吊板之间增减垫片直至门板竖直 门板倾斜度及中缝间隙保证在2mm以内;参考图11-183)确认轿门导轨中心与轿门地坎槽、层门导轨与厅门地坎槽的中心线位置参见图11-154)门扇与下端与地坎、门扇与轿厢门横梁及前轿壁的间隙如图 11-19所示5)轿门地坎与层门地坎的水平距离不大于 30mm,水平距离差为0—+3mm。

前•轿中图 11-191Mli士 u 加-图 11-182轿门装置的调整产品在出厂前均已调整完毕,但考虑到安装及搬运会影响到尺寸精度, 下述几个 方面在现场仍需要调整:开关门应流畅,减速均匀,无明显的撞击声及噪声门机垂直小于等于 0.5mm门刀伸出轿门地坎的尺寸:按图11-20 (a)检查门刀伸出量,若达不到则调整门板和门刀之间的垫片,直至符合要求为止用.”:口\ [I % 11" U I■ 1 1「仆”前 一(\ I,IL-L图 11-20刀片调整:轿门门刀的垂直度偏差0 1mm1)开门行程尺寸:按图11-21,在门开到位时要保持自锁状态,刀片和滚轮按图 11-20 (b)调整(A=B=10± 5mm)图 11-21连杆2连杆3। .t-i约95刀片连杆2和连杆3之间确保10 mm间隙(2)关门行程尺寸:关门到位时两门吊板之间的距离为 50 mm,左右各为25mm,若不符合要求则调节门吊板上的橡胶头螺栓的伸出长度,直至符合要求参见图11-22调整螺栓图 11-22同步齿型带张紧调整:按图11-23测量和调整同步齿型带张紧量,可通过移动左侧同步带轮来调整以减小同步齿型带和带轮摩擦产生的噪声。

14-18mm0.5Kgf 张紧方向图 11-23V型带张紧调整:(1)按图11-24调整电机皮带轮和V型皮带轮中心线至同一平面,以减小噪音;电机皮带轮(A+B)/2=1.5 ±1.5A-B= ± 0.35V型皮带轮图 11-24(2)按图11-25测量和调整电机V型皮带轮的张紧力,可通过移动电机座调节螺栓来调整图 11-25门吊板阻力调整:运行时若阻力太大,可按图 11-26调整门吊板下的挡轮和导轨之间的间隙至〜0.3mm,可使开关门阻力减小,动作平滑门吊板的倾斜度(A-B)在 ± 1mrm> 内门挂轮门机导轨・B=4 ± 1mmrA=4 ± 1mmeeooiqe图 11-26完全关闭门,确认轿门闭合端位置与地坎中心线重合,中心线的偏移量在 1mm参见图11-27以下;完全开启门时,确认门扇的开启位置即门扇凹入前壁板的尺寸图 11-27如果开启端尺寸不符合要求,应调整安装在门滑轮组件上的开启端限位螺栓如果完全关闭门尺寸不符合要求,应调整安装在门上坎框架上的关闭端限位螺栓1.1.1.6安全触板的安装1安装示意简图,参见图11-28图 11-282中分门安全触板安装时的具体要求,参见图 11-29 (以DFC01安全触板右部为例)。

轿门调整后,将安全触板装到轿门上,调节挡块使触板回转突出最大为 48±2mm安全触板上已预留固定开关的准确位置安全触板调整示意图图 11-29如图11-30,联杆长度A1根据尺寸规格选定并临时固定,接着在门全闭位置把触板推入距门端16±2mm,按顺时针方向回转触板,在橡胶头螺栓 A碰到挡板位置(左部分为逆时针),用三个M6螺钉临时紧固凸轮和联杆,设定好触板把门开到全开位置,确认安全触板前端在门全开位置时突出 13±2mm,当大于1 5 mm时应调小联杆长度A1,再设定触板,小于15mm时应放大联杆长度 A1在门全开位置触板最大缩进时,定位联结板调整至刚好碰到拐杆的位置,调整完毕后钻中4孔用弹簧销打入固定用调整螺栓调整至触板行程3〜6mm时,微动开关应动作在安装现场开孔打4x12的弹性圆柱销图 11-30触板与轿门的间隙为3〜5mm中分式安全触板技术参数,参见表 11-1,图11-30表11-1中分式安全触板主要技术参数不开HJJA1ANB?Cl700J9820642026175021322143S川1800229234446绮3502372464552619002522604702619502662744942B1100028028849026111M3063165262611200336344554261130036437£582261140039E4

下载提示
相似文档
正为您匹配相似的精品文档